Ejendomsmægleren faldt for arkitektens opgraderede typehus
Børnefamilien faldt prompte for arkitekt Werner Mathies’ opgraderede typehus
– og fik bygget deres egen luksusudgave i mursten og med nogle ekstra kvadratmeter
Især husets enkle linjer tiltalte dem, og de nyder nu hver dag at komme hjem til et hus fuld af lys, luft og varme.
Læs også: 6 klassiske byggefejl, når danskerne renoverer og bygger nyt
To huse i ét
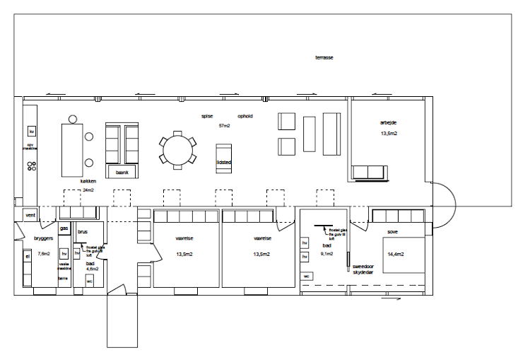
Egentlig er det nybyggede hus på villavejen to huse i ét. Ud mod vejen er det et gedigent murstenshus med små vinduer, der signalerer privathed, men straks hoveddøren åbnes, kommer et helt andet hus til syne.

Garderoben, der hører til entréen, er integreret i den skabsvæg, som adskiller køkken og spisestue.
Vi træder ind i et kæmpe rum, der går fra den ene ende af huset til den anden. Lyset strømmer ind både fra oven fra seks ovenlysvinduer og fra den gennemgående glasfacade, hvor der er udsigt til både himmel og have.
Udenfor er der anlagt en terrasse i hårdt træ i hele husets længde, så her har vi i den grad det, som boligejere i dag efterspørger: en let og nærmest usynlig overgang mellem inde og ude – mellem stuerne og haven.

Forskellen på husets to facader er markant. Mens huset er mere tillukket ud mod villavejen, åbner det sig op ud mod haven med én stor glasfacade og en bred, overdækket terrasse i hele husets længde. På den langstrakte terrasse leves livet en stor del af året. Det store udhæng er udregnet nøjagtigt, så det lukker solen ind om vinteren, men beskytter mod overophedning om sommeren.
Se flere billeder fra huset her
Bare 7 af slagsen i Danmark
Huset er tegnet af Werner Mathies, der er tilknyttet Danske BoligArkitekter, og indtil videre er der opført syv af slagsen rundt om i Danmark. Den første udgave blev bygget i 2006 i forbindelse med boligudstillingen “Fremtidens Parcelhuse” i Herfølge og var et af de første svanemærkede lavenergihuse herhjemme. Men det var først flere år efter, da Stefan og Louise Skafdrup skulle i gang med at bygge deres eget hus, at de fandt ud af, at det netop var sådan et hus, de drømte om.
Parret havde fået datter nummer tre, og deres gamle hus var blevet for trangt, men det var svært at bygge til. Heldigvis lå huset på en stor grund, der kunne udstykkes i to, så de besluttede at sælge og bygge et nyt hus på den nyudstykkede grund ved siden af. Men hvilket hus?
– Vi så på mange typehuse og var frustrerede over, at vi ikke kunne finde det rigtige. Men da vi besøgte Werner Mathies’ hus, var vi ikke mere i tvivl, fortæller Stefan Skafdrup, der som ejendomsmægler ser en del huse og derfor måske også er lidt mere kræsen end gennemsnittet.
Huset her havde præcis det, som familien ledte efter: enkelhed, rene linjer, masser af lys og funktionel planløsning.

I det store rum med bl.a. opholdsstuen er der masser af gulvplads. Generelt er der meget lidt spildplads i huset, hvor gangarealerne er integreret i husets store opholdsrum. En række af ovenlysvinduer sikrer et smukt lysindfald i det langstrakte rum.
Huset er groft sagt bygget op i to dele adskilt af en væg med dybe nicher, som arkitekten kalder en ”fortættet ryg”, hvor størstedelen af husets skabe er indbygget. Til den åbne side mod haven er det lange rum med køkken, spisestue, opholdsstue og arbejdsværelse delvis adskilt af rumdelere. Mellem køkken og spiseplads er det for eksempel en stor skabssektion, og mellem spise- og opholdsstue er det en muret dobbeltsidet brændeovn, der bryder det lange rum. Til den lukkede side mod gaden ligger værelserne på rad og række som små huler.

Familien faldt især for lysindfaldet i huset samt dets enkle og rene linjer, der giver gode og lange kig ned gennem huset
Se flere af arkitekt Werner Mathies’ projekter her
Selv om huset er et arkitekttegnet typehus, valgte familien deres egen ”håndlavede” udgave og fik det bygget op fra grunden på stedet. Med sine 219 m² er huset større end grundmodellen, og familien har ønsket en murstensfacade, som der heller ikke er på Werner Mathies’ oprindelige hus.

Den murede dobbeltsidede brændeovn fungerer som rumdeler mellem spiseafdelingen og opholdsstuen. Gyngestolen af Kristian Illum Wikkelsø er et arvestykke, som er blevet sortmalet. Lampen AJ er fra Louis Poulsen. Huset er på 219 m² og varmes op for ca. 11.000 kr. om året. Oven på brændeovnen troner en udstoppet ravn, købt hos SalkaValka i Nykøbing Sjælland.
– Huset fungerer perfekt for os, og vi glæder os over det hver eneste dag. Jeg tror, at vi altid vil synes, at det er et fedt hus. Det er langtidsholdbart på en anden måde, end hvis vi havde købt et traditionelt typehus. Det er lidt ligesom at købe en Wegner-stol – man bliver aldrig træt af den, siger Stefan Skafdrup.

Fra køkkenet er der både adgang til et bryggers og til haven. Familien har prioriteret at have masser af skabsplads i køkkenet og resten af huset. I alt tæller huset 32 højskabe.

Familien gik efter det helt enkle design i køkkenet og valgte et hvidt JKE-køkken med grebsløse elskuffer og en ultratynd bordplade i stål. Taburetterne og lamperne er fra Design By Us.
FAKTA OM HUSET
Arkitekt: Werner Mathies.
Størrelse: 219 m2.
Type: Ét plan med ensidig taghældning.
Proces: Huset er et arkitekttegnet typehus, som familien har modificeret og opgraderet til en særlig luksusudgave, der er bygget på stedet. Men man kan også bestille Werner Mathies’ hus som et elementbyggeri, hvor vægelementerne kommer færdige direkte fra fabrik.
Materialer udvendigt: Facaden er en trækonstruktion med skalmur af Kolumba-tegl fra Petersen Tegl. Vinduer og skydedørspartier med tre lag glas fra Pro Tec. Tagbelægning er tagpap.
Materialer indvendigt: Plankegulve i douglasgran fra Danish Hardwood. Køkken med elskuffer og 6 mm massiv stålbordplade fra JKE Design. Hvidevarer fra ATAG.
Energi: Naturgasfyr og varmegenvindingsanlæg fra Genvex. Der er gulvvarme i hele huset.
Arkitekthonorar: ca. 100.000 kr.
Byggepris: ca. 16.000 kr. pr. m2 inkl. arkitekthonorar
Læs også: Arkitekt Rasmus Bak tegnede selv sit sommerhus

Huset er groft sagt bygget op i to dele adskilt af en væg med dybe nicher, som arkitekten kalder en ”fortættet ryg”, hvor størstedelen af husets skabe er indbygget. Til den åbne side mod haven er det lange rum med køkken, spisestue, opholdsstue og arbejdsværelse delvis adskilt af rumdelere. Til den mere lukkede side mod nord ligger værelserne på rad og række som små huler.
Fakta om Danske BoligArkitekter
Denne boligreportage er blevet til i samarbejde med Danske BoligArkitekter, som er en sammenslutning af 80 selvstændige arkitekter over hele landet, der alle har dokumenteret erfaring med byggeprojekter for private boligejere. Medlemmerne er uddannet indenfor energioptimering af boliger og er dækket af en særlig ansvarsforsikring, der også dækker selvom arkitekten lukker sin virksomhed.
Se flere projekter på danskeboligarkitekter.dk.
Tekst Gitte Nielsen
Foto Martin Dyrløv


