Bæredygtigt selvbyggerhus der koster 0 kr. i varme
En arkitekt tegnede skitserne, et typehusfirma leverede råhuset til det flotte selvbyggerhus
– og så gik Christian Tast og Marie Lind ellers selv i gang med resten. De har fået et unikt hus lige efter deres hjerte, hvor jordvarme, solceller og energiruder sørger for, at huset kan varmes op for nul kroner.
Marie Lind og Christian Tasts hus hører ikke til den slags, der går 13 af på dusinet. Alene beklædningen med de såkaldte tagspån eller shingles i cedertræ er ikke så udbredt herhjemme. Huset er så at sige bygget ind i den skråning, som var på grunden i forvejen, og da det samtidig er det sidste på villavejen, har ejerne fordelen af en pragtfuld udsigt til skov og fynske marker.
Læs også: Signe Wenneberg om bæredygtighed og snusfornuft
Soverum og fællesrum
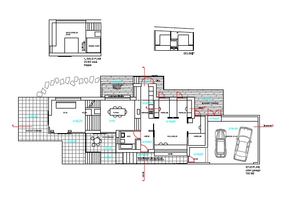
En tur rundt i huset afslører, at huset er helt specielt. Storebror Lukas’ værelse er placeret i den ene ende af huset i børnenes afdeling, som han deler med sine to mindre søskende, Molly og Otto.

Børneværelserne har karakter af små celler på blot syv kvadratmeter og er mest tænkt som små soverum. Iben Schlanbusch har tegnet de to alkover, mens Christian Tast som alt andet i huset selv har bygget. Molly på fem år, som har fået overkøjen, mens lillebror Otto har underkøjen på den anden side af skillevæggen.
Hver af børneværelserne er kun 7 m2, men til gengæld har de tre børn et stort fællesrum. Alle tre børn har hver sit værelse på kun syv kvadratmeter med udgang til haven og et større fællesrum, hvor der kan leges, spilles og sysles med kreative aktiviteter. Hele børneafdelingen kan lukkes af med en skydedør fra resten af huset. Det sidste sker nu sjældent hos Marie og Christian og deres tre børn, for her er i den grad tale om en familie, der elsker at være sammen, og det afspejler sig i indretningen af huset, som arkitekt Iben Schlanbusch fra tegnestuen B19 har tegnet.

Se flere billeder fra huset hos Danske BoligArkitekter
Parret fik kontakt til Iben Schlanbusch via Maries kusine, og hun gik som det første i gang med at spore sig ind på, hvad det var for nogle mennesker, hun skulle tegne hus til.
– Det er en meget vigtig fase, som en arkitekt ikke må nedprioritere, ellers kan man ramme helt ved siden af. Det er vigtigt, at forstå de mennesker, der skal bo i huset, kende deres værdier og vide, hvordan de lever. I tilfældet med Christian og Marie var det ret nemt at spore sig ind på, hvad de ville have, og de blev faktisk glade for den første skitse, som jeg præsenterede. På den måde var det et mønsterforløb, fortæller Iben Schlanbusch.

Da skitserne til huset lå klar, indgik Christian en aftale med typehusfirmaet Skovbohuse, der ud fra Iben Schlanbuschs tegninger konstruerede og opførte råhuset – men kun selve trækonstruktionen.
Alle ydervæggene inklusive isolering og beklædningen har ejeren selv bygget. Og her afveg familiens ønsker fra det gængse både hvad angår isolering og facadebeklædning.

Huset tilpasser sig det oprindelige bakkede terræn på grunden. Der er samtidig fin kontakt mellem de indvendige rum på de forskellige niveauer og de mange uderum omkring hele huset.
– Vi vil ikke bo i en plasticpose. Jeg har før haft problemer med eksem og tilskrev det, at jeg på det tidspunkt boede i et nyt og helt tæt hus, der var isoleret med rockwool og dampspærre, som jo er det mest almindelige. Derfor har vi valgt at isolere med træfiber. Det giver et perfekt indeklima, og samtidig er huset topisoleret, fortæller Christian Tast.

I enden af huset er der både garage og et stort hobbyrum med plads til både motorcykel og bordtennisbord.
Se flere af arkitekt Iben Schlanbuschs projekter her
Det sidste vidner familiens varmeregning da også om. Efter at familien nu har ”prøvekørt” huset gennem flere vintre, kan de nemlig konstatere, at deres varmeregning er på siger og skriver nul kroner. Solcelleanlægget leverer strøm til varmepumpen, som styrer jordvarmen.

De mange niveauspring er karakteristisk for huset. Her et kig fra opholdsstuen nederst op til spiseafdeling, køkken og bagest med de blå vægge, børneafdelinen.
Familiens samlede strømforbrug er dog lidt større, end solcellerne kan klare, men en elregning på beskedne knap 300 kroner er, hvad familien må ud med om måneden.
Læs også: Det aktive passivhus i Hornbæk
FAKTA OM HUSET
Arkitekt: Iben Schlanbusch
Størrelse: 208 m2 bolig, 48 m2 carport og redskabsrum
Proces: Arkitekten leverede tegningerne, som et typehusfirma rejste råhuset efter. Råhuset blev opført på tre uger, men hele byggeriet tog omkring to år. Det er prisen, når man vælger et selvbyggerhus.
Materialer udvendigt: Facaden er beklædt med træspån i cedertræ fra Thorslunde Træ. Derudover tagpap på taget og træ/alu vinduer med tre lag glas fra Rationel.
Materialer indvendigt: Væggene er behandlet med lerbaseret maling fra levendefarver.dk
Energi: Huset er topisoleret med træfiber med dampspærre i papir, der giver et mere åndbart hus. Jordvarmanlægget holder varmeregningen på 0 kr. årligt. Solceller holder familiens strømforbrug nede på ca. 200-300 kr.
Arkitekthonorar: ca. 55.000 kr.
Byggepris: ca. 11.000 kr. pr. m2 inkl. arkitekthonorar.
Læs også: Signe Wenneberg om bæredygtighed og snusfornuft
Fakta om Danske BoligArkitekter
Denne boligreportage er blevet til i samarbejde med Danske BoligArkitekter, som er en sammenslutning af 80 selvstændige arkitekter over hele landet, der alle har dokumenteret erfaring med byggeprojekter for private boligejere. Medlemmerne er uddannet indenfor energioptimering af boliger og er dækket af en særlig ansvarsforsikring, der også dækker selvom arkitekten lukker sin virksomhed.
Se flere projekter på danskeboligarkitekter.dk.
Tekst Journalist Gitte Nielsen
Foto Christina Kayser Onsgaard


